Overview
- Special Purpose, Commercial Sale
- 9919 Sqft
- 2005
- VALO2086138
Description
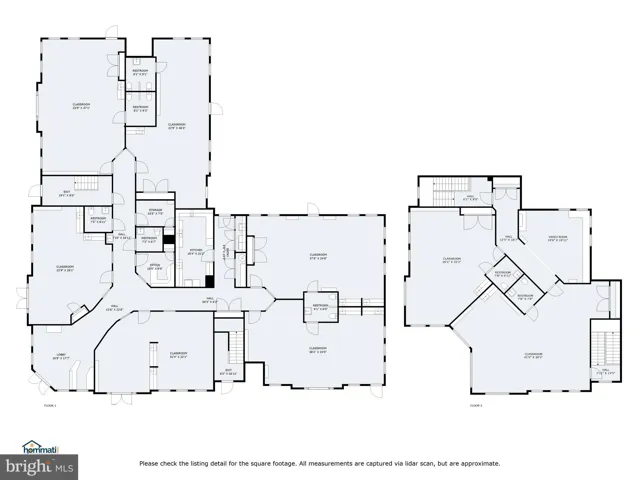
Located at 42851 Smallwood Terrace in Chantilly, VA, this 9,919 SF early education and child care center is available for sale or lease, with seller financing options and immediate occupancy. Designed for a licensed capacity of 168 children (ages 1 month to 12 years, 11 months), the two-level facility features 8 spacious classrooms, 7 restrooms, kitchen, director’s office, a large outdoor play area with commercial-grade playground equipment, and a layout ideal for owner-user use. Positioned just 650 feet from Loudoun County Parkway and less than a mile from Route 50 and Braddock Road, the property offers excellent accessibility for families in the area.
Seller Financing Available!
Situated in an affluent community with a median household income of approximately $239,000, this property is poised to meet the growing demand for quality child care services. Chantilly’s robust demographics, combined with the property’s turnkey condition and strategic location, make it an exceptional opportunity for investors or operators in the early education sector. This ready-to-use facility is perfect for those seeking a prime location to establish or expand their child care business.
Address
Open on Google Maps-
Address: 42851 SMALLWOOD TERRACE
-
City: Chantilly
-
State: VA
-
Zip/Postal Code: 20152
-
Country: US
Details
Updated on April 8, 2025 at 9:36 am-
Property ID VALO2086138
-
Price $4,950,000
-
Property Size 9919 Sqft
-
Land Area 1.17 Acres
-
Garage Size x x
-
Year Built 2005
-
Property Type Special Purpose, Commercial Sale
-
Property Status Active
-
MLS# VALO2086138
Additional details
-
Roof Asphalt,Shingle
-
Utilities Electric Available,Natural Gas Available,Phone Available,Sewer Available
-
Sewer Public Sewer
-
Cooling Central A/C,Zoned
-
Heating Zoned,Heat Pump(s)
-
Flooring Engineered Wood,Laminated,Carpet,CeramicTile
-
County LOUDOUN-VA
-
Property Type Commercial Sale
-
Parking Private
Mortgage Calculator
-
Down Payment
-
Loan Amount
-
Monthly Mortgage Payment
-
Property Tax
-
Home Insurance
-
PMI
-
Monthly HOA Fees
Schedule a Tour
Your information
360° Virtual Tour
Contact Information
View Listings- Tony Saa
- WEI58703-314-7742
