213 SUNBIRD LN , Waynesboro, VA 22980
- $299,900
Overview
- Residential
- 3
- 3
- 1713 Sqft
- 2025
- 669113
Description
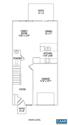
This is the very last Orchid townhome available in Creekwood Village! Just completed and move-in ready, this home offers a bright, open layout with 9-foot ceilings on the main level that make the space feel even more expansive. A one-car garage, wide entryways, and thoughtful design choices throughout add ease to everyday living. Upstairs, the spacious primary bedroom includes a walk-in closet and attached bath, while two additional bedrooms with large closets and a full hall bath provide flexible space for guests, work, or hobbies. Step outside to a private back patio?ideal for relaxing or catching up with friends in the fresh air. Actual photos!,Granite Counter,White Cabinets
Address
Open on Google Maps-
Address: 213 SUNBIRD LN
-
City: Waynesboro
-
State: VA
-
Zip/Postal Code: 22980
-
Area: UNKNOWN
-
Country: US
Details
Updated on October 21, 2025 at 3:35 pm-
Property ID 669113
-
Price $299,900
-
Property Size 1713 Sqft
-
Land Area 0.05 Acres
-
Bedrooms 3
-
Bathrooms 3
-
Garage Size x x
-
Year Built 2025
-
Property Type Residential
-
Property Status Active
-
MLS# 669113
Additional details
-
Association Fee 209.0
-
Roof Architectural Shingle,Composite
-
Sewer Public Sewer
-
Cooling Programmable Thermostat,Other,Central A/C
-
Flooring Carpet,CeramicTile
-
County WAYNESBORO CITY-VA
-
Property Type Residential
-
High School WAYNESBORO
-
Architectural Style Other
Mortgage Calculator
-
Down Payment
-
Loan Amount
-
Monthly Mortgage Payment
-
Property Tax
-
Home Insurance
-
PMI
-
Monthly HOA Fees
Schedule a Tour
Your information
Contact Information
View Listings- Tony Saa
- WEI58703-314-7742
