Overview
- Residential
- 3
- 4
- 2.0
- 1965
- VALO2108194
Description
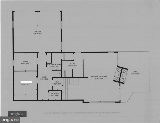
This spacious home sits on a private 0.55-acre lot and combines the charm of its 1965 construction with thoughtful modern updates. The expansive yard provides both privacy and ample space for outdoor activities, while the interior reflects a warm, welcoming, and well-maintained home. The lower level was fully renovated in 2024 and now features new carpet, a stylish bar, enhanced comfort provided by the additional mini-split systems, wood burning fireplace and a full wheelchair accessible bath with roll in shower. Other recent improvements include a new roof, whole-house HVAC system, hot water heater, updated windows, a remodeled primary shower, sump pump, original cast iron plumbing replaced with PVC, original panel was upgraded and moved to bring home to current electrical code, re-asphalted the driveway.
Enjoy three fireplaces — one on each level plus a third outdoors, located on the lower deck near a pergola, perfect for cozy gatherings. The property also includes a storage shed, 2 car garage and a driveway that accommodates 6–10 cars.
If you haven’t visited or are not familiar with this area – you must stop by to appreciate the beauty and options. IYKYK – Broad Run Farms is a unique community with no HOA, but residents can choose to join the community association for just $50 annually, with an optional $20 fee for gated river access. The neighborhood offers an eclectic mix of original homes and newly built custom residences, allowing for potential of expansion for an owner with vision.
Conveniently located just off Route 7, the home offers easy access to Fairfax, Ashburn, Leesburg, and western Loudoun County. Opportunities like this don’t last long — book your tour today
Address
Open on Google Maps-
Address: 45550 LAKESIDE DRIVE
-
City: Sterling
-
State: VA
-
Zip/Postal Code: 20165
-
Area: BROAD RUN FARMS
-
Country: US
Details
Updated on October 22, 2025 at 4:28 pm-
Property ID VALO2108194
-
Price $799,000
-
Land Area 0.55 Acres
-
Bedrooms 3
-
Bathrooms 4
-
Garages 2.0
-
Garage Size x x
-
Year Built 1965
-
Property Type Residential
-
Property Status Active
-
MLS# VALO2108194
Additional details
-
Roof Asphalt,Shingle
-
Utilities Propane,Electric Available,Sewer Available,Water Available
-
Sewer Public Sewer
-
Cooling Central A/C,Zoned,Ceiling Fan(s),Ductless/Mini-Split,Heat Pump(s)
-
Heating Heat Pump(s),Zoned
-
Flooring Hardwood,CeramicTile,Carpet
-
County LOUDOUN-VA
-
Property Type Residential
-
Parking Paved Driveway,Private
-
Elementary School COUNTRYSIDE
-
Middle School RIVER BEND
-
High School POTOMAC FALLS
-
Architectural Style Raised Ranch/Rambler
Features
Mortgage Calculator
-
Down Payment
-
Loan Amount
-
Monthly Mortgage Payment
-
Property Tax
-
Home Insurance
-
PMI
-
Monthly HOA Fees
Schedule a Tour
Your information
Contact Information
View Listings- Tony Saa
- WEI58703-314-7742
