580 ARROWHEAD DR , Earlysville, VA 22936
- $850,000
Overview
- Residential
- 5
- 4
- 4546 Sqft
- 1987
- 669855
Description
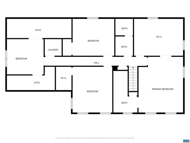
This classic cedar sided colonial offers incredible, flexible interior space with 5+ bedrooms & 4 full bathrooms over 3 levels. Set on a beautiful private lot, well off the quiet neighborhood road, this residence enjoys access to dedicated hiking trails, but is also just a short drive to 29 North shopping, UVA, schools & everything you need day to day. Enter to the formal living room & dining room, a spacious island kitchen, a sunny family room with french doors leading out to the deck. Top that with the convenience of a main floor guest bedroom with full bath (also perfect for an office). The main floor of this home has solid oak floors! The upper level features a spa-like primary suite with large dressing room, 3 more bedrooms, laundry & another full bathroom. The terrace level has 2 family room areas, an additional bedroom/flex space and full bath. The home is well maintained with recently installed HVAC, newer roof, an on-grade 2 car garage & generous driveway parking. Four outdoor lovers, a neighborhood walking trail leads in two directions through a sun-dappled forest and right along the reservoir don’t miss the sunny field at the left rear of the lot. See Floorplans and Features list in Docs.,Granite Counter,Fireplace in Family Room
Address
Open on Google Maps- 
            Address: 580 ARROWHEAD DR
- 
            City: Earlysville
- 
            State: VA
- 
            Zip/Postal Code: 22936
- 
            Country: US
Details
Updated on October 27, 2025 at 5:01 pm- 
                    Property ID 669855
- 
                    Price $850,000
- 
                    Property Size 4546 Sqft
- 
                    Land Area 1.38 Acres
- 
                    Bedrooms 5
- 
                    Bathrooms 4
- 
                    Garage Size x x
- 
                    Year Built 1987
- 
                    Property Type Residential
- 
                    Property Status Active
- 
                                    MLS# 669855
Additional details
- 
					Association Fee 909.0
- 
					Roof Architectural Shingle
- 
					Sewer Septic Exists
- 
					Cooling Central A/C
- 
					Heating Central,Heat Pump(s)
- 
					Flooring Hardwood
- 
					County ALBEMARLE-VA
- 
					Property Type Residential
- 
					Elementary School BROADUS WOOD
- 
					High School ALBEMARLE
- 
					Architectural Style Colonial
Mortgage Calculator
- 
				Down Payment
- 
				Loan Amount
- 
				Monthly Mortgage Payment
- 
				Property Tax
- 
				Home Insurance
- 
				PMI
- 
				Monthly HOA Fees
Schedule a Tour
Your information
360° Virtual Tour
Contact Information
View Listings- Tony Saa
- WEI58703-314-7742
 
					 
	    	 
     
                 
                 
                 
                 
                 
                 
                 
                 
                 
                 
                 
                 
                 
                 
                 
                 
                 
                 
                 
                 
                 
                 
                 
                 
                 
                 
                 
                 
                 
                 
                 
                 
                 
                 
                 
                 
                 
                 
                 
                
 
		 
		 
				